Spartoli
Locatie Anderlecht, Brussel, België
Type Publieke opdracht / Wedstrijd
Opdrachtgever MSI Brussel
Team Dhooge & Meganck Architectuur - Happel Cornelissen Verhoeven Architects BV
Oppervlakte 1.000 m²
Datum 2018-
Status Wedstrijd
‘Street scene’ (L.S. Lowry 1887-1976)
NIEUWBOUW VAN EEN BRANDWEERKAZERNE EN GEDEELDE PUBLIEKE SPORTINFRASTRUCTUUR
BALANS IN DE STAD
De site van deze opgave bevindt zich langs het Kanaal in Anderlecht. Het perceel wordt aan de ene zijde geflankeerd door een industriële loods en een hoog woonblok, aan de andere zijde door een wemeling van woningen. De brede omgeving heeft een doorleefde, grillige context met enerzijds industriegebouwen als onhandige trotse volumes en anderzijds clusters aan fijnmazige gebouwen waarin wonen, winkelen en werken onderdak vinden. Deze bijzondere stedelijke verstrengeling van wonen en industrie is een belangrijke insteek voor de verdere ontwikkeling van het Kanaal. Er is geen streven naar een monotone stad, maar een stad die in functies en volumes de verdraagzaamheid en levendigheid heeft om vele verschillen op één plek in balans op te nemen. De nieuwe brandweerkazerne zou een gebouw kunnen zijn dat door zijn uitdrukking tot de verbeelding spreekt en een plek opeist, maar zich tegelijkertijd door een uitgedachte schikking van de gebouwdelen ook neerlegt en hecht in de stad.
OPEN RUIMTE ALS DRAGER
De site kent vier randen met elk een eigenzinnig karakter. Aan de steenweg voelt de afwezigheid van een “gevel-in-de-rij” als een tand die ontbreekt in een gebit. Deze leemte is ook een opportuniteit: het is een buitenbeentje die om aandacht vraagt, net zoals de brandweer een zichtbare positie vraagt in de stad. Aan de andere zijde dipt de site slechts met een teen tot aan het Kanaal voor ze wegplooit in de zijstraat. Aan de westzijde schuiven grote naastgelegen volumes van een productiesite aan tegen de perceelsgrens. Hier is draagvlak in het stedelijk weefsel om grotere afmetingen in te brengen op onze site. Aan de oostkant vormt de grens met de woningencluster een grillig silhouet waar vele zichtlijnen en aangrenzende private ruimtes van de woningen een voorzichtige aanpak vragen. De erfdienstbaarheid van zicht, lihct en rafeligheid van de scheidende muur naar de woningen vormen een uitgangspunt om deze wand in te zetten als decor voor de open ruimte, met behoud van de ruwe kantjes.
RECHTLIJNIG
Het gebouw zit dan ook gevat in één lineaire beweging tegen de westkant, het volume neemt bewust afstand van de oostelijke scheidingsmuur. Hierdoor introduceren we een ‘leegte’ met kwaliteiten die rechtstreeks in te zetten zijn voor het ontwerp. In de eerste plaats draagt deze open ruimte twee noodzakelijke onderdelen: het draai- en uitrijplein en het oefenterrein, die samen de flexibiliteit en praktische werkbaarheid van de kazerne hoog opdrijven.
KOP HALS ROMP
De grenslijnen van de site vertonen zeer uiteenlopende karakters. Er is in hoogte en diepte een uitgedachte compositie van het nieuwe ontwerp nodig om rekening te houden met de omliggende korrel van gebouwen en bijhorende gevoeligheden (lichten en zichten). De centrale vraag die we onszelf gesteld hebben is hoe we de veelheid aan functies bij elkaar kunnen brengen in een gebouw dat zich nestelt in een veelkoppige stad.
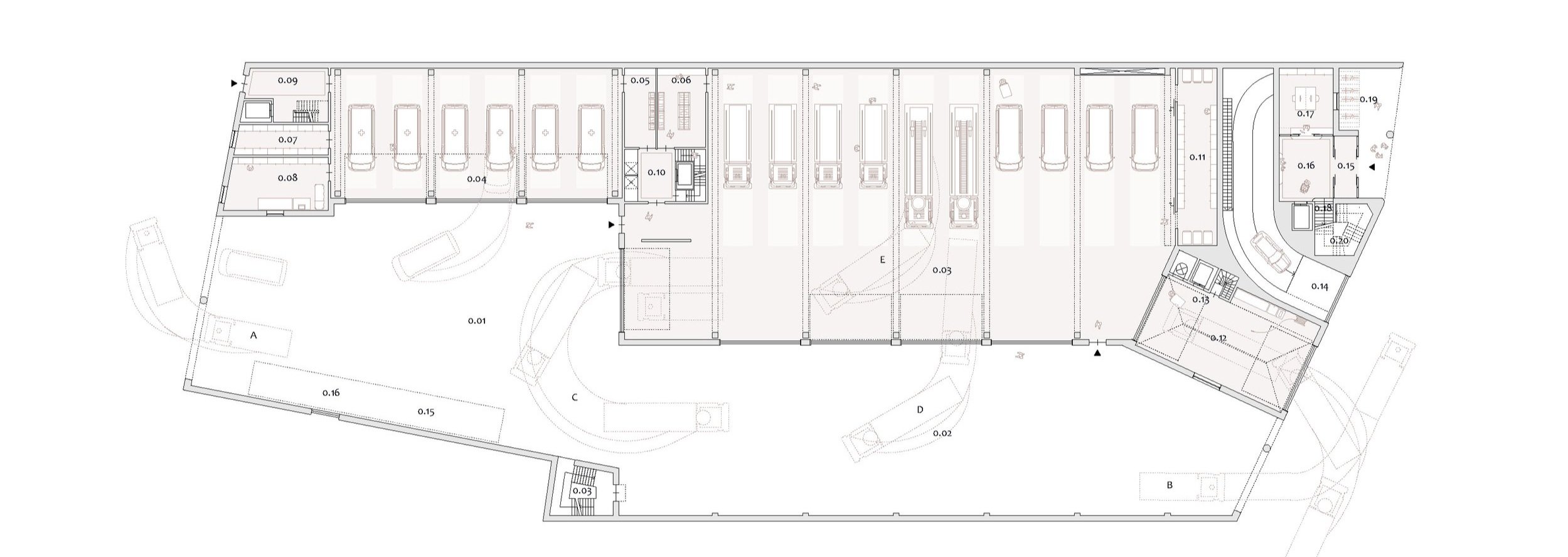
We hebben ons hiervoor geïnspireerd op de typologie van de kop-hals-rompboerderij, een boerderijtype dat veel voorkomt in Friesland, Groningen. Het entreegebouw (statig kopgebouw) aan de steenweg sluit aan bij de omliggende bebouwing. Hier zijn vanaf de eerste verdieping de kantoren van de brandweerkazerne gevestigd waardoor dit gebouwtje autonoom kan functioneren en bezoek ontvangen kan worden zonder de werking van de remise te storen. Het halsgebouw legt de verbinding tussen beide delen en stelt zich lager op naar de zichtlijnen van de naastgelegen buren. Ze huisvest de ambulances en alle slaapvertrekken. Het rompgebouw sluit laag aan op de hals en groeit richting het Kanaal. Ze herbergt een veelheid aan functies, zoals parking, logistiek, leefruimte, remise en sport onder één dak. Het gezicht aan de Kanaalzijde vindt dan weer aansluiting bij de omliggende industriële gebouwen, hier toont het gebouw zicht als een stoere bonk langs het water.
ROBUUST EN VERFIJND
Het statige kopgebouw, het dienende halsgebouw en de grote functionele romp kennen alle drie een eigen architectonische identiteit door de wisselende context waar ze op reageren, maar worden eenduidig gematerialiseerd met beproefde materialen zoals baksteen, hout, beton en staal.
Door de toepassing van kleurtonen die dicht tegen elkaar aanliggen en passen in de omgeving blijft het gebouw ondanks de verschillende onderdelen en programma’s toch een geheel.
Het geheel wordt stevig op de grond gezet met een robuuste en continue plintbebouwing in donker bruinrode baksteen. De bebouwing daarboven wordt voorzien in rood-oranje genuanceerde baksteen die straks in cadans wordt gehouden door metalen kaders. Deze ritmeren de gevel en plooien open tot steunende profielen die lichtvoetig het overstekende dak dragen. De combinatie van metselwerk in metalen frames is typisch voor industriële architectuur, het is een kleine knipoog naar de omliggende gebouwen. Anderzijds is het ook een esthetisch-pragmatische keuze. De geprefabriceerde metalen kaders houden de circulaire en recupereerbare bakstenen bij elkaar in een esthetische belijning.
FUNCTIONELE SCHOONHEID
Hoewel de kazerne bij uitstek een gebouw is waar groepsdiscipline en paraatheid het credo vormen, is het ook een plek waar de collega’s veel uren samen doorbrengen. Het gebouw moet dus ten eerste functioneel zijn, maar mag daarnaast ook best een beetje huiselijk zijn.
Het motief voor het interieurontwerp is daarom ‘functionele schoonheid’, daarbij wordt de functionaliteit van de duurzame kazerne op een aantal manieren ook architectonisch ingezet. De keuze voor massief hout is bijvoorbeeld niet alleen zichtbare duurzame keuze, maar draagt bovendien bij aan de kwaliteit van het interieur. Door het product onafgewerkt toe te passen ontstaat een warme en aangename ruimte.

